FA151 dedusting machine is designed for efficient dust and impurity removal from fibers, improving cleanliness and quality in textile preparation processes.
Blowroom
Complete clean and open cotton machines
Complete clean and open cotton machines
Excellent Machines
Boost your spinning efficiency
Fa151 Deduting Machine
main feature :
FA151 dedusting machine is designed for efficient dust and impurity removal from fibers, improving cleanliness and quality in textile preparation processes.
Product details
Application
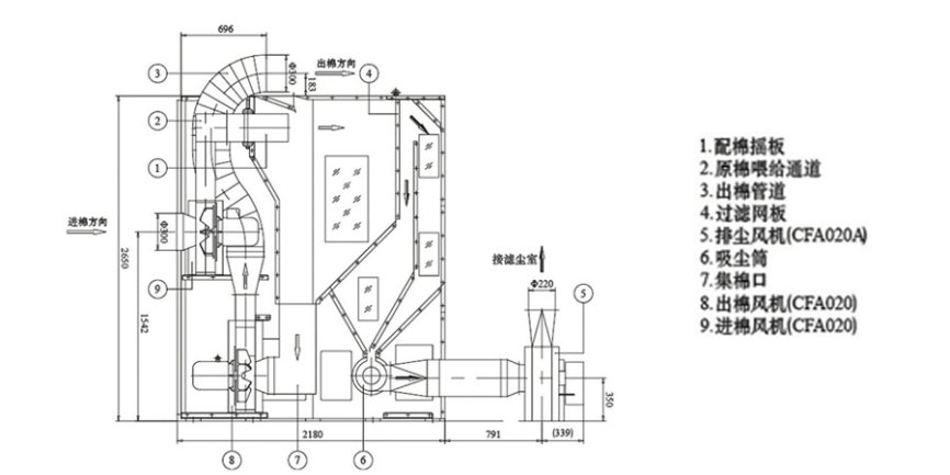
The machine is suitable for processing cotton of various grades, and is usually used as the dedusting point in cleaning line. Micro dust can be removed efficiently only if the fibre has sufficiently opened. Application of this machine in the cleaning line is of special importance in the mills having rotor spinning and air-jet loom, since the end breakage in spinning due to dust-laden fibre can be greatly reduced.
Main Features
The way to remove dust is special fibre turfs collide with perforated plate, and with the help of air currents to remove the dust, this machine has advantages as do little harm to fibre, high efficiency and flexible process.A frequency-inverted stepless variable motor is used for the delivery fan, the speed of which can be set according to the air pressure requirement of the system.
Main technical parameters
Specifications | |
Model | FA151 |
Output(kg/h) | 600 |
Working width(mm) | 1600 |
Aie volume of fan inside the machine (m³/s) | 0.55-1.11 |
Aera of filter net(m²) | 2.6 |
Swing times of paddle(time/min) | 63 |
Power(kW) | 12.75 |
Overall dimensions(L×W×H)(mm) | 2150×1860×2650 |
Net weight (kg) | About 1800 |
Inquiry Now
Start typing and press Enter to search